1561 FM934, Blum, TX 76627
Toggle Navigation
Images
Videos
Floor Plans
3D Tour
Map
1561 FM934
Blum, TX 76627
Scroll to Content
Images
Slideshow
Photo Grid
Hide
Previous
Next
Show more
Videos
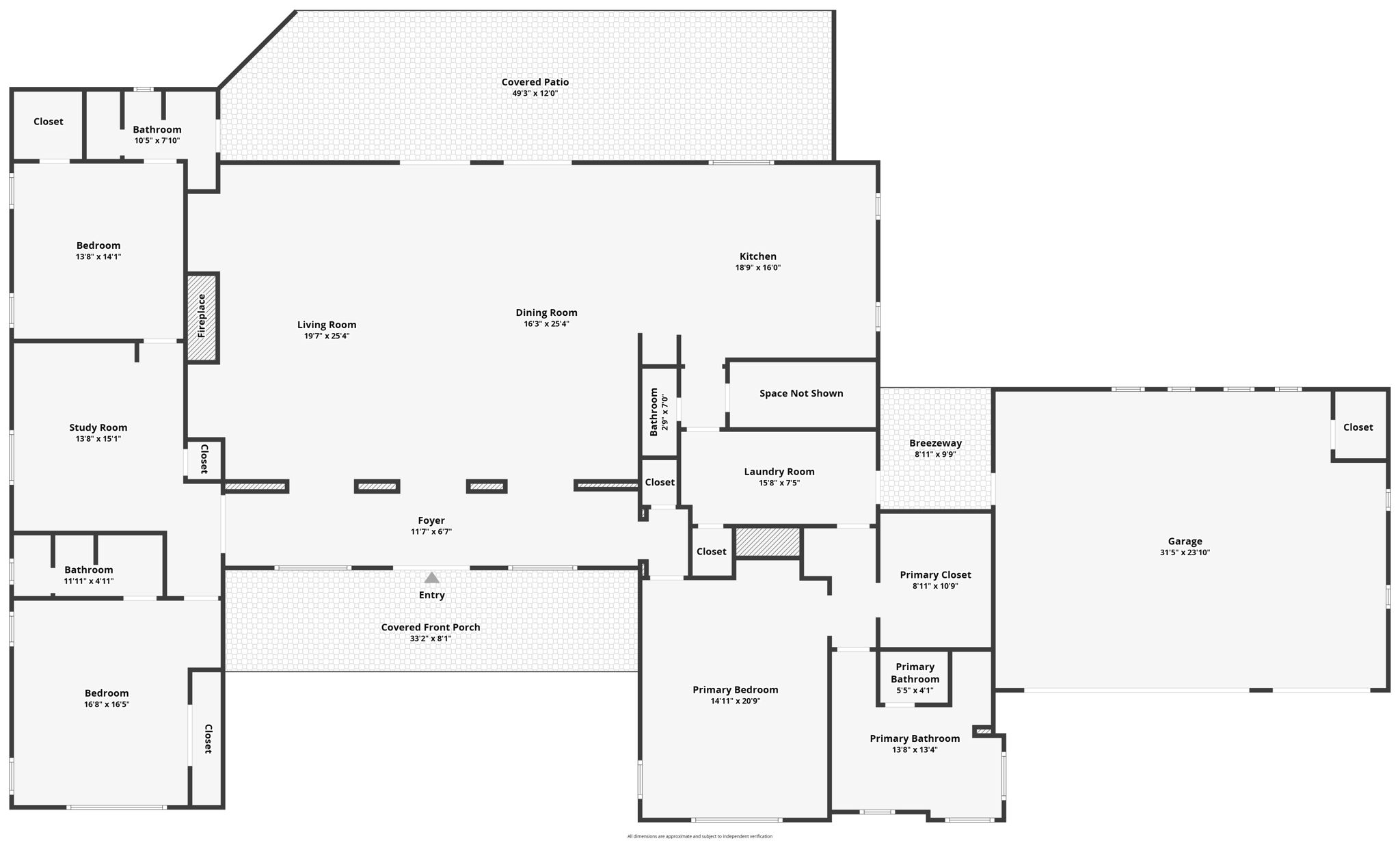
Floor Plans
Slideshow
Photo Grid
Hide
Previous
Next
3D Tour
Zillow 3D Tour - Main House
Zillow 3D Tour - Guest House
Zillow 3D Tour - Shop